Leicester Royal Infirmary – Discharge Lounge

Project: Discharge Lounge
Client: University Hospitals of Leicester NHS Trust
Location: Leicester Royal Infirmary

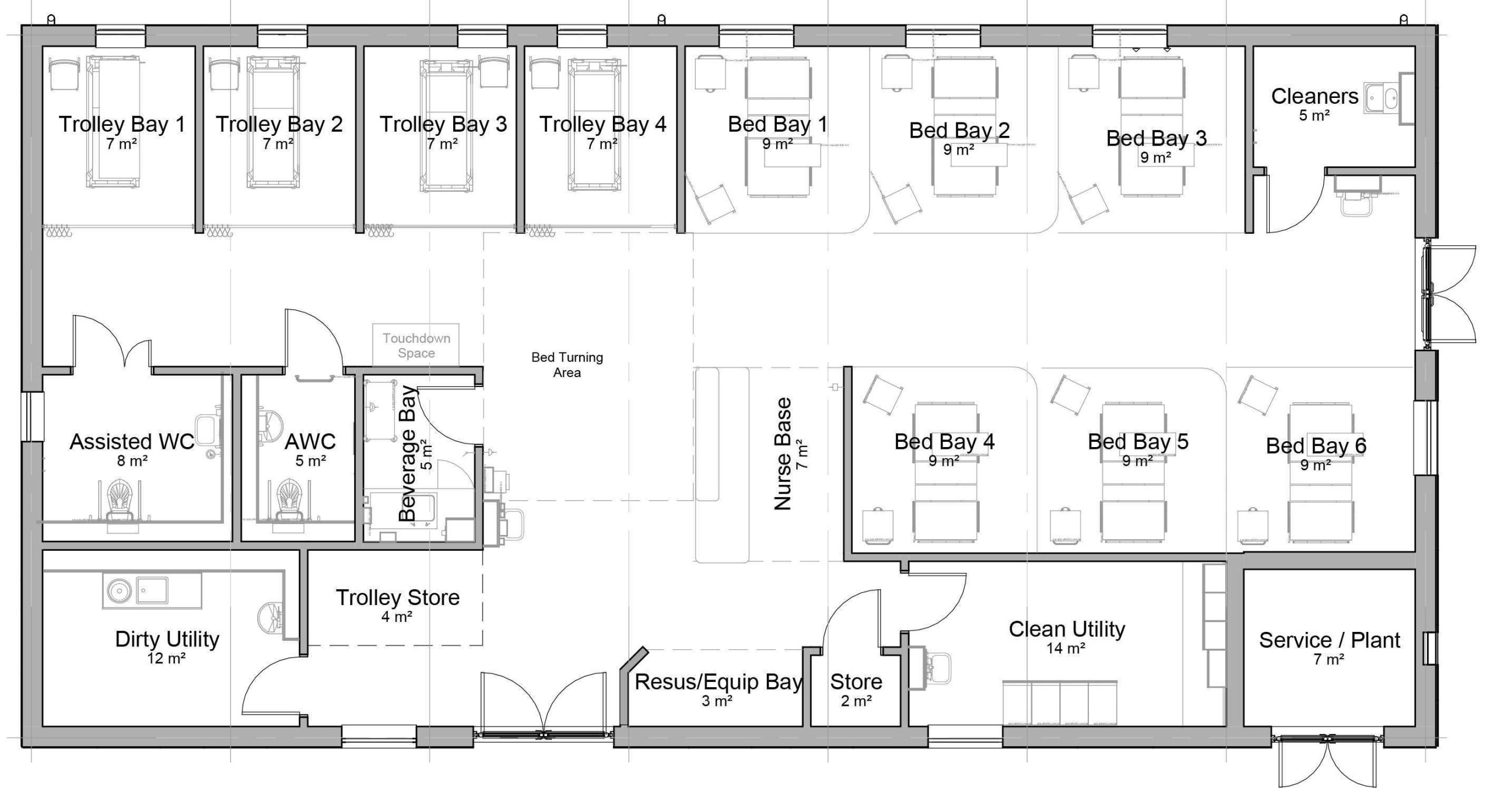
  • 10 no. beds.
  • GIFA 241m².
  • Reduced ambulance wait times.
The challenge

When University Hospitals of Leicester NHS Trust needed help to relieve its winter bed pressures and reduce ambulance wait times, it turned to Darwin Group to help.

Our solution

The result was an 241m² ultra-modern 10-bed pre-transfer hub Leicester Royal Infirmary that supports patients who have been seen in the emergency department, but are awaiting transfer to a ward – either at LRI or another hospital.

When a patient enters the care of the pre-transfer unit team, the emergency department team can accommodate another patient who requires a bed.

The build, which was started in October 2022 and handed over at the start of 2023, was a complex project. Not only was it on a busy blue light route, but it also required the removal of a large canopy which covered the existing ambulance bays.

Testimonial

With the additional capacity the unit brings, we will be able to get ambulances back onto the road quicker, more consistently.”

Andrew Furlong
Medical Director
Leicester Royal Infirmary

LATEST NEWS